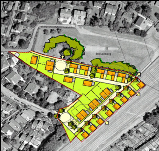
Städtebauliche Entwürfe

Städtebauliche Entwürfe bilden die Basis unseres städtebaulichen Handelns. Dabei legen wir Wert auf die gesamte Bandbreite von einfachen Strukturskizzen bis hin zu kompelexen städtebaulichen Entwürfen als Basis einer nachfolgenden Bauleitplanung.